
-
Arquitectos: Estudio Alinea
- Área: 620 m²
- Año: 2024
-
Fotografías:Cristóbal Correa

Descripción enviada por el equipo del proyecto. Townhouse Flandes responde a un proyecto de densificación de baja altura, el cual se configura a través del emplazamiento de un mono volumen de 3 pisos, de 9m x 30 m, que alberga 4 viviendas privadas en condominio.


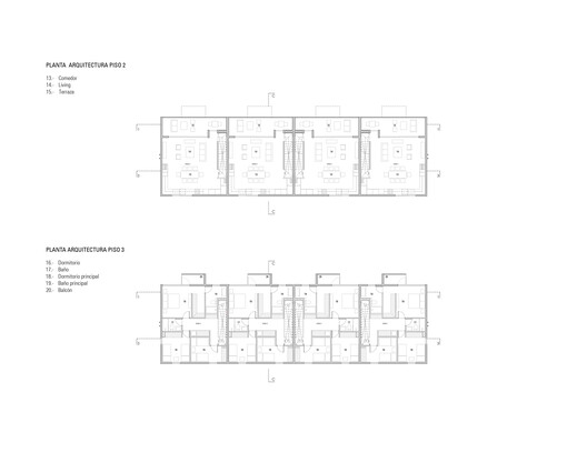
Se propone un primer piso libre que reduzca los costos del proyecto, eliminando el subterráneo, que albergue los estacionamientos de cada una de las viviendas, desde los cuales se accede a los espacios privados y jardines de cada casa.


En el segundo piso se configura un espacio principal para living, comedor y cocina, distribuyendo en 3er piso, tres dormitorios y dos baños privados.

La configuración volumétrica y materialidad del proyecto, permite mantener y respetar la escala del barrio en el que se sitúa, estableciendo una relación con el contexto urbano existente.























